Kiadó ipari ingatlan Tata 550 000 Ft

Leírás

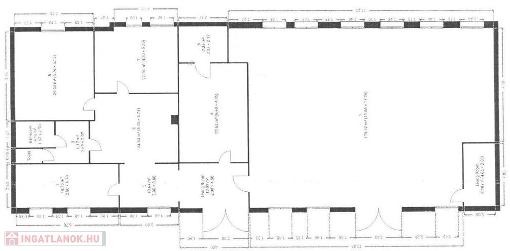
Tatán Ipari Övezetben Csarnok Kiadó

Az épület teljes területe 391 nm, melyből 180 négyzetméter a munkaterület, a többi részen irodák, öltözők, vizesblokkok találhatók:
Öltöző: 18,76 nm
Irodák (3db): 29,6 nm, 28,5 nm, 10,1 nm
Vizes blokk: 10 nm

Műszaki jellemzők:
Tégla épület, Nagy kapukkal
Nenon világítás
Villany: 3 X 240A
Tűzivíz van
Levegős rendszer kiépítve
Targoncázható: Belmagasság 3,65 m
Teherautóval megközelíthető
Fűtés: 2 db Klíma, Elektromos fűtés, Gáz fűtés
Belső zárt udvar, elktromos kapuval

Bérleti díj: 550.000,- Ft + ÁFA

Ipari ingatlan részletei

Ár: 550 000 Ft/hónap
Méret: 391 négyzetméter
Azonosító: 11608684
Irodai azonosító: 9780
Cím: Tata
Ingatlan állapota: Átlagos
Jelleg: egyéb