Az értékesítő:
Telek Bernadett
+36 70 367 7606

Eladó családi ház Kisbér, 84 500 000 Ft, 280 négyzetméter

84 500 000 Ft
családi ház, 280 négyzetméter
Egész szobák:
5
Ingatlan állapota:
Átlagos
Azonosító:
11615464
Értékesítés típusa:
eladó
Ingatlan típusa:
családi ház
Jelleg:
Családi ház
Település:
Kisbér
Alapterület:
280
Telekterület:
1844
Ár:
84 500 000 Ft
Fűtés jellege:
Cirkó
Erkély:
Van
Telekterület típusa:
négyzetméter
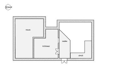
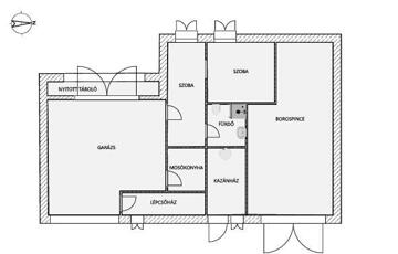
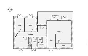
Ez több, mint egy ingatlan… Mesés, vadregényes környezetben alakíthatja ki egyedi otthonát, szinte tópart menti házában. Az ingatlan kertje végében ugyanis, mintha csak saját horgásztava lenne, fellelhető a Zöldmalmi horgásztó. Mindez Kisbéren, a Kishomok utcában található. A nem mindennapi ingatlan azonnal elvarázsolja az embert, mely egy 1844 nm telekre épült, szintén egyedi tervezésű 280 nm családi ház formájában, mely belső kialakításával is azonnal magával ragad és beindítja a fantáziát. A házat 1986-ban építették jelenlegi tulajdonosai, az akkori korszerű alapanyagoból (3 rétegű terméskő, B30-as tégla, 15 cm szigetelés, 2 rétegű ablaküveg, cseréptető) Az épület azóta nagyobb felújításon nem esett át, azonban karbantartott és frissen festett, átlagos állapotú. Új tulajdonosa egy újragondolt, mai trendeknek megfelelő otthont is varázsolhat belőle igény szerint. Melegét padlófűtéssel és radiátorokkal szerelt cirko gázkazán biztosítja. Ezenkívül a nappaliban egy kandalló fokozza a meleget, hangulatával együtt. Elrendezése a következő: hatalmas, hangulatos galériás nappali tetőterasszal, 3 szoba, konyha+kamra, fürdőszoba. Az alagsorban kialakított szintén egy szoba, fürdőszoba, külső bejárással a garázs felől, ahol nyári konyha vagy egy külön lakrész létrehozható. Parkolásra az udvaron túl dupla garázs biztosít helyet. A ház aljában egy jókora méretű boros pince is megépítésre került. 3 fázisú árammal bővített az ingatlan. Az érzést, ami rabul ejti az embert, mikor ide belép, nem lehet leírni, ezért aki fantáziadús, páratlan otthonra vágyik, jöjjön és nézze meg, nem lesz csalódás! Amennyiben nincs meg a vételárhoz szükséges összeg, irodánk díjmentes hitelügyintézéssel,a legmegfelelőbb konstrukcióval segít álmai megvalósításában. Érdeklődni: Telek Bernadett 06703677606
https://ingatlanok.hu/elado/haz/kisber/85-millio-ft;280-negyzetmeter;5-szoba;cirko-futes/11615464